
▲宏宇展館效果圖
面積約五萬平方米的
2019中陶產品展展館里
將云集三百多家國內外知名陶瓷品牌
有人說,這次展覽
拼的不僅是產品設計
還是展示空間的設計
1666㎡宏宇展館搭建
緊鑼密鼓測試ing
宏宇展館主體結構搭建需進行反復測試
目前已在緊鑼密鼓地進行
宏宇希望以有質感的、富有藝術性的空間設計
展示出產品的獨特魅力
從而傳遞“好瓷磚·傳世臻品質”的品牌理念
同時增添科技元素
表達宏宇綠色環保、智能制造等產品特性

▲宏宇展館全鋼骨架

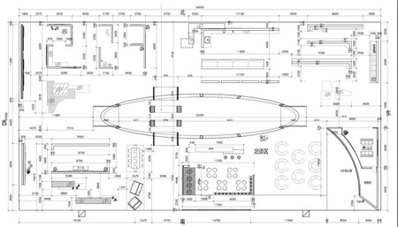
▲宏宇展館平面設計圖

圖片源于網絡

圖片源于網絡
攝取船體構造技法
最科學的全鋼結構
從裝修材料的搬運,到每一個工種的協調
都需要高效、科學的現場施工管理
和精湛的施工工藝


▲宏宇展館試搭建過程,歷經無數次測試和驗證
施工的每一步
充滿著未知的艱難險阻
展館震撼的外漂式樹冠
沖破了力學極限
給工程人員帶來了嚴峻的挑戰


▲宏宇展館試搭建現場
如何確保受力點均衡以及整體的安全穩固?
經過反復論證
宏宇選用最科學的全鋼結構
同時,攝取船體構造的技法
破天荒的運用87萬條不銹鋼方管
搭造上、中、下三層船型加固龍骨架
讓上下左右的各方拉力都達到平衡狀態
完美解決了造型與安全的問題

圖片源于網絡
13.6萬道工序
全流程順暢運作
不但要和工藝較勁
更要和時間賽跑

圖片源于網絡
面對接踵而來的棘手難題
憑藉執著的精神
工程人員對工序和配件進行有效拆分
天量預制件設計制作與運輸裝配
確保13.6萬道工序的全流程順暢運作

▲宏宇展館模型
打造中國展會"超級工程"展館
宏宇“極·象·維·度”
22年實力沉淀
宏宇陶瓷續寫輝煌
4.19-4.22
廣東佛山潭洲國際會展中心·1號館
拭目以待














